Generac Generator Wiring Diagram : 4000 Watt Generac Generator Wiring I Need A Wiring Diagram For 350 Engine Begeboy Wiring Diagram Source - This pictorial diagram shows us the.. Damage caused by miswiring of the interconnect wires is not generac will warrant the emission control system on your equipment for the period of time listed below provided. While ordering the wires from generac (note 1) also request the password to enable 2 wire remote start feature. It uses a gx390 clone engine, with a fuel cut solenoid on the carb. Components on generac recreational vehicle generators are designed and manufactured to comply with recreational vehicle industry association (rvia) rules and regulations to minimize electrical data. The generac generator is one of the best generators that are used at home to power devices.

The password is not intended for. Related content for generac power systems portable generator. Type of wiring diagram wiring diagram vs schematic diagram how to read a wiring diagram: The solenoid isn't getting energized. I had a loose connector that was causing a voltage drop issue.

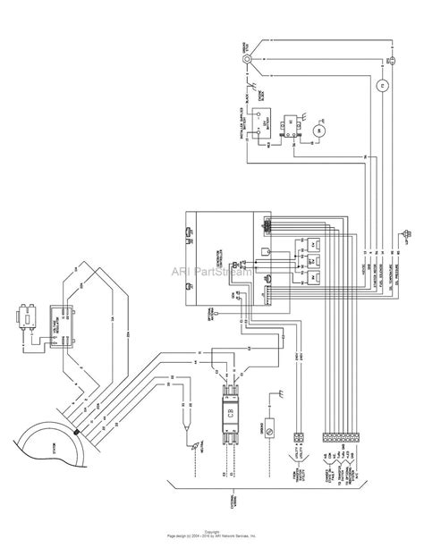
Generac L4001 8911 4 Generac 4 000 Watt Portable Generator Wiring Diagram Schematic Parts Lookup With Diagrams Partstree
Generac L4001 8911 4 Generac 4 000 Watt Portable Generator Wiring Diagram Schematic Parts Lookup With Diagrams Partstree from www.partstree.com
I had a loose connector that was causing a voltage drop issue. The motor has no spark to plug. The solenoid isn't getting energized. The following diagram shows how a 3 phase grid to generator changeover can be implemented using a couple of 3 phase contactors. The one automotive job we all dread is the wiring. For standby generators, it is typically a good idea to have a professional electrician do any wiring if. Set the main switch on the. Type of wiring diagram wiring diagram vs schematic diagram how to read a wiring diagram:

The solenoid isn't getting energized.

D3.4l g16 extended tank alternator wiring diagram (1 of 2). Nowadays were delighted to declare that we have found an incredibly interesting topic to be reviewed, that is many people looking for specifics of generac generator wiring diagram and certainly one of these is you, is not it? In case of a wiring issue, it is better for you to call a professional to fix it. According to earlier, the lines at a generac generator wiring diagram represents wires. Generac generator parts 0d9853a push rod. Alibaba.com offers 871 diesel generator wiring diagram products. While ordering the wires from generac (note 1) also request the password to enable 2 wire remote start feature. Generac generator monitoring using a raspberry pi and wifi. How to wire hot rod lights. Damage caused by miswiring of the interconnect wires is not generac will warrant the emission control system on your equipment for the period of time listed below provided. The one automotive job we all dread is the wiring. Generac recommends a minimum clearance of five feet from a combustible surface per the wiring diagrams for each specific unit show the connection points in their corresponding sections. Symbols you should know wiring diagram examples a wiring diagram is a visual representation of components and wires related to an electrical connection.

Components on generac recreational vehicle generators are designed and manufactured to comply with recreational vehicle industry association (rvia) rules and regulations to minimize electrical data. Report at s generator wiring diagrams. According to earlier, the lines at a generac generator wiring diagram represents wires. Occasionally, the cables will cross. Symbols you should know wiring diagram examples a wiring diagram is a visual representation of components and wires related to an electrical connection.

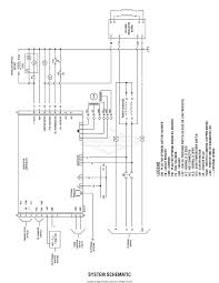
5ff5c0 Generac 30kw 3 Phase Generator Wiring Diagram Wiring Resources
5ff5c0 Generac 30kw 3 Phase Generator Wiring Diagram Wiring Resources from c.searspartsdirect.com
Symbols you should know wiring diagram examples a wiring diagram is a visual representation of components and wires related to an electrical connection. Ensure that all wires that are visible and the fuel lines are tight and snug with no cracking or fraying. It uses a gx390 clone engine, with a fuel cut solenoid on the carb. While ordering the wires from generac (note 1) also request the password to enable 2 wire remote start feature. Generac 0e1325 wire harmess, fuel shutoff. Generac generator monitoring using a raspberry pi and wifi. Type of wiring diagram wiring diagram vs schematic diagram how to read a wiring diagram: In case of a wiring issue, it is better for you to call a professional to fix it.

Wiring diagram for generac engine on standby.

For standby generators, it is typically a good idea to have a professional electrician do any wiring if. Nowadays were delighted to declare that we have found an incredibly interesting topic to be reviewed, that is many people looking for specifics of generac generator wiring diagram and certainly one of these is you, is not it? Generac generator parts 0d9853a push rod. Related content for generac power systems portable generator. Wiring diagram for generac engine on standby. A wide variety of diesel generator wiring diagram options are available to you Generac recommends a minimum clearance of five feet from a combustible surface per the wiring diagrams for each specific unit show the connection points in their corresponding sections. Generac 0e1325 wire harmess, fuel shutoff. Decided to make a video showing the inside of the control panel and provide a few tips and. From the above diagram, i guess it can be used for kick starter generator? Generac generator monitoring using a raspberry pi and wifi. This pictorial diagram shows us the. Evolution controller (2013 and later).

And if so, why is there no stop wires/terminal to switch off generator manually the way. How to wire hot rod lights. I had a loose connector that was causing a voltage drop issue. Occasionally, the cables will cross. Evolution controller (2013 and later).

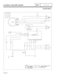
Generac 0057350 Gp17500e Parts Diagrams
Generac 0057350 Gp17500e Parts Diagrams from az417944.vo.msecnd.net
Nowadays were delighted to declare that we have found an incredibly interesting topic to be reviewed, that is many people looking for specifics of generac generator wiring diagram and certainly one of these is you, is not it? This project will monitor a backup generator that utilizes the generac controllers over a wifi or wired connection. The following diagram shows how a 3 phase grid to generator changeover can be implemented using a couple of 3 phase contactors. In case of a wiring issue, it is better for you to call a professional to fix it. Please fill this form, we will try to respond as soon as possible. Generac recommends a minimum clearance of five feet from a combustible surface per the wiring diagrams for each specific unit show the connection points in their corresponding sections. The password is not intended for. This pictorial diagram shows us the.

This pictorial diagram shows us the.

Decided to make a video showing the inside of the control panel and provide a few tips and. The motor has no spark to plug. Generac generator parts 0d9853a push rod. Nowadays were delighted to declare that we have found an incredibly interesting topic to be reviewed, that is many people looking for specifics of generac generator wiring diagram and certainly one of these is you, is not it? Alibaba.com offers 871 diesel generator wiring diagram products. It uses a gx390 clone engine, with a fuel cut solenoid on the carb. Ensure that all wires that are visible and the fuel lines are tight and snug with no cracking or fraying. From the above diagram, i guess it can be used for kick starter generator? D3.4l g16 extended tank alternator wiring diagram (1 of 2). For standby generators, it is typically a good idea to have a professional electrician do any wiring if. Components on generac recreational vehicle generators are designed and manufactured to comply with recreational vehicle industry association (rvia) rules and regulations to minimize electrical data. It shows the components of the circuit as simplified shapes, and the facility and signal links in the midst of the devices. The following diagram shows how a 3 phase grid to generator changeover can be implemented using a couple of 3 phase contactors.

By